Politan Row

Houston, tx.

  • repositioning & hospitality

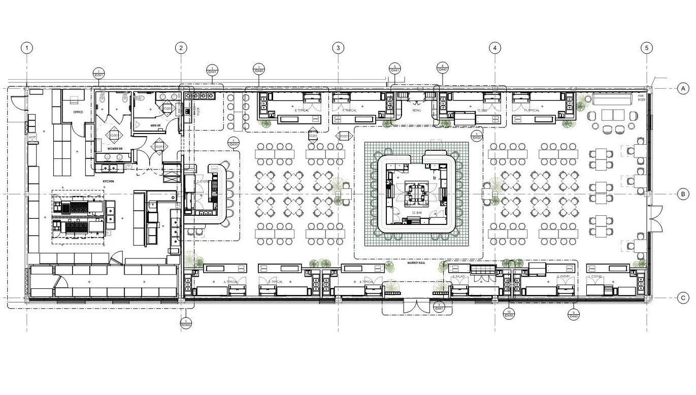
  • The project involved the adaptive reuse of an 8,000 SF single-story concrete building in the heart of Rice Village. Situated on a prominent corner with generous existing window openings, the structure provided an ideal canvas for a vibrant food hall.

    The program includes 11 food stalls, a centralized bar, and a shared back-of-house kitchen. To preserve the openness of the original volume, the stalls were arranged along the perimeter, allowing clear sightlines across the hall and maximizing natural light. A centrally located bar anchors the interior and serves as the primary point of orientation, while a distinctive ceiling feature draws visitors inward from the exterior and sets the character of the space.

Project architect

Previous
Previous

Shipyard Creek

Next
Next

314 Clematis